91porn 超市、咖啡吧商业配套服务项目招商公告
发布时间:2024-12-09 来源:后勤保卫部
为提升社会公众及91porn 员工服务配套,根据工作计划安排,现就91porn 超市、咖啡吧商业配套服务项目进行公开招商,诚邀符合条件的合作方报名参加。现公告如下:
一、项目概况
(一)项目地点:湖北省武汉市硚口区中山大道26号91porn 诚信楼正北侧(现诚信楼东、西贯穿连廊外侧)辅助用房区域。
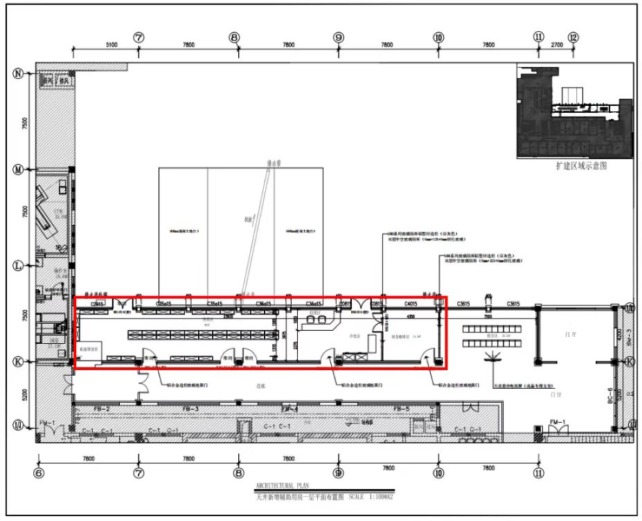
(二)项目区域:项目区域位于诚信楼正北侧(现诚信楼东、西贯穿连廊外侧)天井处,项目占地面积约147平方米,长度35.9米,宽4.1米,净高4.2米。
(三)项目规划:规划商业为医疗延伸服务类、生活服务类、休闲餐饮类。

91porn 地理位置

项目区域大致分布
(标红部分为本次招商区域)

项目区域实景
(标红部分为本次招商区域)
二、招商业态
为满足来院患者、访客及91porn 员工等服务需求,招商业态主要为超市、咖啡吧服务。
(一)超市:副食、日用品、粮油、饮料。
(二)咖啡吧:饮品、咖啡、糕点、便当。
三、招商条件
(一)本项目可整租或分租,具体合作模式、合作条件、合作期限等内容,经双方商议并行招商评定流程后确定。
(二)合作方基本要求:具有完全民事行为能力的法人或自然人,具有良好的征信记录等。具备《营业执照》《食品经营许可证》资质。
(三)具体招商条件以项目组确认的招商方案为准。项目组将按照公平、公正、公开原则,由相关单位和部门组成评选小组,根据合作方针对该项目的投资计划及实施方案、所提供的经验业绩、履约实力、资信状况等具体情况进行综合评定。
四、参与方式
(一)报名时间:2024年12月10日
(二)报名方式:通过文末所示联系人进行报名,线上或线下方式均可。
(三)报名及正式商谈所需资质证明材料,以联系人通知为准。
(四)联系人:何佳
联系方式:027-83745747
联系地址:湖北省武汉市硚口区中山大道26号91porn 后勤保卫部。
特别声明:本公告仅用于招商推介,不构成要约邀请、要约或承诺。文字和图片信息仅供展示及参考,欢迎意向合作方垂询。
后勤保卫部
2024年12月10日

扫描二维码